Architekturprojekte Crescendo
Um-, An- und Neubauten
Variable Einfamilien-, Ketten- und Reihenhäuser                                                                                       Home
 

 
 

Potenzieller Um- und Anbau eines Bungalows im Hamburger Speckgürtel

Grundlagenermittlung
Sondierungsauftrag im Januar 2013 
 

Abbildungen: 
Entwurfskonzeptskizzen 
als "Italisches Atriumhaus" unter besonderer Brücksichtigung der Bestandscapabilities


Neubau eines Doppelhauses
in Norderstedt-Glashütte

Grundlagenermittlung und Entwurfsphasen
Auftragsarbeit seit 2012 
 

Abbildung 1: Bauplatzimpression
mit Selbstbildnis des Entwurfsverfassers

Neubau eines Doppelhauses
in Norderstedt-Glashütte

Grundlagenermittlung und Entwurfsphasen
Auftragsarbeit seit 2012 

1. Planungsphase (Stand September 2012): 
Vorentwurf und Bauvoranfrage

Abbildung 2: Schauseiten zur Straße

Neubau eines Doppelhauses
in Norderstedt-Glashütte

Grundlagenermittlung und Entwurfsphasen
Auftragsarbeit seit 2012 

1. Planungsphase (Stand September 2012): 
Vorentwurf und Bauvoranfrage

Abbildung 3: Gartenfassaden

Neubau eines Doppelhauses
in Norderstedt-Glashütte

Grundlagenermittlung und Entwurfsphasen
Auftragsarbeit seit 2012 

1. Planungsphase (Stand September 2012): 
Vorentwurf und Bauvoranfrage

Abbildung 4: 
Axonometrie zur Terrassensituation

Neubau eines Doppelhauses
in Norderstedt-Glashütte

Grundlagenermittlung und Entwurfsphasen
Auftragsarbeit seit 2012 

1. Planungsphase (Stand September 2012): 
Vorentwurf und Bauvoranfrage

Abbildung 5: Axonometrie zum Zufahrtsbereich

(Abb. 1-5: 
Eigenhändige Kugelschreiberskizzen
des Entwurfsverfassers)

Neubau eines Doppelhauses
in Norderstedt-Glashütte

Grundlagenermittlung und Entwurfsphasen
Auftragsarbeit seit 2012 

2. Planungsphase (Stand November 2012): 
Entwurf

Abbildung: Grundriss EG

Neubau eines Doppelhauses
in Norderstedt-Glashütte

Grundlagenermittlung und Entwurfsphasen
Auftragsarbeit seit 2012 

2. Planungsphase (Stand November 2012): 
Entwurf

Abbildung: Vier CAD-Entwurfsansichten

Neubau eines Doppelhauses
in Norderstedt-Glashütte

Grundlagenermittlung und Entwurfsphasen
Auftragsarbeit seit 2012 

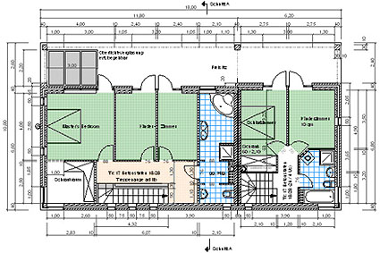
2. Planungsphase (Stand November 2012): 
Entwurf

Abbildung: Grundriss OG


Neubau eines Doppelhauses
in Norderstedt-Glashütte

Innenraumentwurf
Private Flause 

Neopalladianische Raumfassungen
(Handskizzen 2013) ...

> Zur höheren Auflösung
in der Abteilung Interieurs
 

Neubau eines Doppelhauses
in Norderstedt-Glashütte

Gartenentwurf
Private Flause 

Manieristische Gartenminiatur
(Handskizze 2013)

> Zur höheren Auflösung
in der Abteilung Gartenentwürfe
 

Neubau der Möbel Wulff KG
in Norderstedt - Harksheide

Grundlagenermittlung und Entwurfsphasen
Auftragsarbeit 2000-2002 

1. Planungsphase (2000/01): 
Raumbildende Maßnahmen im Altbestand

Abbildung: Altbestand


 
 

2. Planungsphase (2001/02): 

Ausstellungsneubau unter Erhaltung der rückwärtigen Lagerhalle

Abbildung: Vorentwurfsskizze

3. Planungsphase (2002): 

Modifizierte Neubauplanung für integrale 
Büro- und Austellungsflächen mit gemeinsamer Foyer-Rotunde 

Abbildung: 
Nachträgliche Entwurfsdokumentation (2003)

3. Planungsphase: 

Entwurfsplanung für einen zusätzlichen Mietwohnungsbau mit integraler Auslieferungshalle 
auf dem Grundstück der Möbel Wulff KG 
unter Abbruch des Altbestandes 

Abbildung: 
Nachträgliche Entwurfsdokumentation (2003)

 
Gut Basthorst,
Kreis Herzogtum Lauenburg

Dachgeschoßausbau im Werkstattriegel
Planung mit Dipl.-Ing. Matthias Mulcke (2000) 

Abbildung: 
Virtuelle Studie zu Raum- und Farbwirkungen

 

Eine Entwurfsserie variabler Einfamilien-, Ketten und Reihenhäuser

Innen-/architektonische Leitmotive:

Architektur:

*  „Modern classic“ : Verwendung klassischer Ordnungsprinzipien und nordeuropäischer Bautraditionen.

Innenraumgestaltung:

*  Die Enfilade - das Prinzip der „Raumfluchten“: Aus dem fließenden Ensemble funktionell autarker Einzelräume ....resultiert eine Wohnlandschaft ganzheitlicher Empfindungsvielfalt („Mikrokosmos“).
*  Raumgefüge: 
   - Einheit von Innen- und Außenraum durch Transparenzen und diaphane Strukturen (Oberlichter, Wintergärten)
   - Achsiale Aus - und Durchblicke mit vielfältigen Orientierungsmarken
   - Perzeption der Dreidimensionalen (Treppenräume, Emporen.
*  "Raum der Mitte" (Eßdiele, Wohnhalle) als Kommunikationszentrum mit dänischem Tresen;
....Kaminofen als archetypisches Herz des Hauses.
*  Schlafplatz-Anordnung teilweise unter Oberlichtstreifen (Nachthimmel-Blick) vorgesehen.
*  Komprimierung: Großzügige Raumwirkungen auf reduzierter Grundfläche.

 Individueller Zuschnitt:

*  Integrales Prinzip: Einheit von Wohn- und Arbeitsraum (Atelierwohnen).
*  Anpassungsfähigkeit für spezifische Haushaltsarten (Heimarbeitsmodelle, Mehrgenerationenwohnen)
*  Kostensenkung durch reduzierte Grundstücksflächen und Bauteiloptionen.
*  Zuschaltflexibiltät durch u.a. Auskragung transparenter Bauglieder (alle Arpeggio-Modelle) bzw. Kopplung
    von Haushälften (Arpeggio da capo)
*  Raumnutzungs- und verbindungsflexiblität durch verschiedene Raumteiler und Öffnungsoptionen
*  Auswahl individueller Baustoffe im Innen- und Außenbereich. 
*  Optional Teil- oder Vollkeller (Arpeggio grosso/da capo).
 

 
Modell Arpeggio solo

Kompakthaus für Single-/Paarwohnen oder als
Zweitwohnsitz geeignet

Abbildung1: Außenansicht 

Modell Arpeggio solo

Abbildung 2: 
Doppelstöckige Wohnhalle mit Atelierempore

Modell Arpeggio da capo

Großzügiges Kettenhaus für Vierpersonen-Haushalt und Heimarbeitsplatz

Abbildung 1: Außenansicht

Modell Arpeggio da capo

Abbildung 2: 
Doppelstöckige Eßdiele mit Wintergarten

Modell Terrace Holmes

Straßenraumbildende Stadtvilla oder Reihenhauszeile nach englischem Vorbild. 

Abbildung: 
Option Stadtvilla, Straßenansicht

Modell Terrace Holmes MFH

Geschoßwohnungsbau mit differenzierten Gebäudekubaturen und Wohnungszuschnitten durch die variable Verknüpfung von Holmes-Fassadenmodulen 

Abbildung: 
Option MFH, Hofansicht

 

Zu weiteren Ansichten in der Entwurfsgalerie